Nous suivre
0

Superbe bien familial avec jardin à Arcueil

Arcueil (94110)
Réf : 677
L'agence du centre vous propose, à Arcueil centre-ville historique, ce superbe 4 pièces avec jardin arboré.

Idéalement situé en plein coeur d'Arcueil historique, à proximité immédiate des commerces et à moins de 10 minutes à pied du RER Arcueil-Cachan, ainsi que de la future ligne 15 du Grand Paris Express (mise en service prévue en 2027), cet appartement bénéficie d'un emplacement particulièrement recherché.

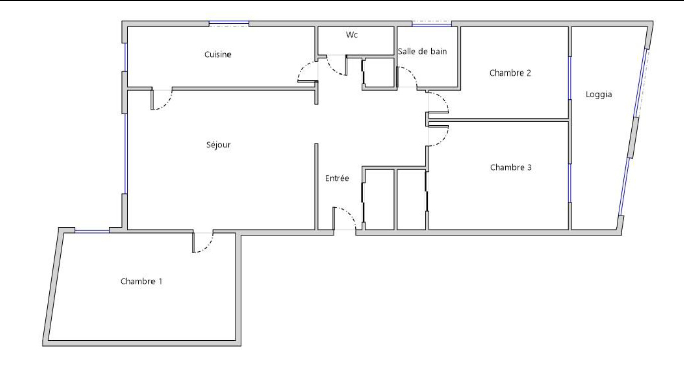
Au sein d'une copropriété des années 90 parfaitement entretenue (ravalement récent, parties communes en excellent état) et conforme aux normes PMR, venez découvrir ce superbe appartement 4 pièces en rez-de-jardin, entièrement refait avec goût et en parfait état.

Il se compose de :

- Une vaste entrée avec placard,
- Un séjour lumineux,
- Une grande chambre avec dressing,
- Une cuisine entièrement équipée avec coin repas,
- Deux chambres supplémentaires donnant sur une pièce fermée pouvant servir de bureau ou de terrasse d'hiver non isolée,
- Une salle de bain avec fenêtre et baignoire d'angle,
- WC indépendants avec rangements.

Un magnifique jardin arboré privatif, sans vis-à-vis, vient compléter ce bien rare, offrant calme et tranquillité en plein coeur de la ville, idéal pour profiter de moments de détente en extérieur ou recevoir en toute convivialité.

Les plus :

- Appartement entièrement refait avec goût
- Emplacement recherché
- Proximité transports (RER + future ligne 15)
- Copropriété bien entretenue
- Jardin privatif sans vis-à-vis
- Appartement calme et lumineux

Une place de parking située au même niveau que l'appartement vient parfaire la description de ce bien.

Une opportunité rare à découvrir rapidement, idéale pour une famille ou pour toute personne recherchant un cadre de vie alliant confort, espace et accessibilité aux portes de Paris. Son agencement optimisé et ses prestations de qualité en font un bien prêt à vivre, sans travaux, répondant parfaitement aux attentes actuelles en matière de confort et de praticité.

Les informations sur les risques auxquels ce bien est exposé sont disponibles sur le site Géorisques : www.georisques.gouv.fr

Conformément à l'article I.561-5 du Code monétaire et financier, une copie de la pièce d'identité de chaque visiteur sera demandée avant la visite. Nous vous remercions par avance pour votre coopération.

Les photos produites avec rendu naturel !
Prix du bien 445 000 €
Pièce(s) 4
Chambre(s) 3

Caractéristiques du bien

Caractéristiques Valeurs
Code postal 94110
Surface habitable (m²) 82,09 m²
Nombre de chambre(s) 3
Nombre de pièces 4
Nb de salle de bains 1
Type de cuisine Equipée
Mode de chauffage Gaz
Type de chauffage Radiateur
Format de chauffage Collectif
Balcon NON
Année de construction 1997

Infos financières

Caractéristiques Valeurs
Prix de vente honoraires TTC inclus 445 000 €

Bilans énergétiques

DPE GES
Ce bien vous intéresse ?
Fieldset par défaut
Fieldset par défaut
Validation

* Champs obligatoires

Contacter l'agence
Validation
Les informations recueillies sur ce formulaire sont enregistrées dans un fichier informatisé par La Boite Immo agissant comme Sous-traitant du traitement pour la gestion de la clientèle/prospects de l'Agence / du Réseau qui reste Responsable du Traitement de vos Données personnelles. La base légale du traitement repose sur l'intérêt légitime de l'Agence / du Réseau. Elles sont conservées jusqu'à demande de suppression et sont destinées à l'Agence / au Réseau. Conformément à la loi « informatique et libertés », vous disposez des droits d’accès, de rectification, d’effacement, d’opposition, de limitation et de portabilité de vos données. Vous pouvez retirer votre consentement à tout moment en contactant directement l’Agence / Le Réseau. Consultez le site https://cnil.fr/fr pour plus d’informations sur vos droits. Si vous estimez, après avoir contacté l'Agence / le Réseau, que vos droits « Informatique et Libertés » ne sont pas respectés, vous pouvez adresser une réclamation à la CNIL. Nous vous informons de l’existence de la liste d'opposition au démarchage téléphonique « Bloctel », sur laquelle vous pouvez vous inscrire ici : https://www.bloctel.gouv.fr Dans le cadre de la protection des Données personnelles, nous vous invitons à ne pas inscrire de Données sensibles dans le champ de saisie libre.
Ce site est protégé par reCAPTCHA, les Politiques de Confidentialité et les Conditions d'Utilisation de Google s'appliquent.