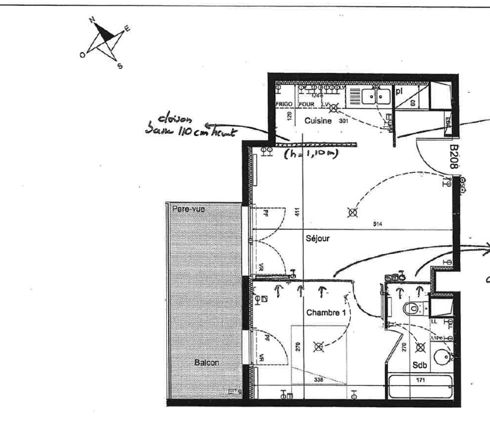
Appartement Cachan 2 pièce(s) 38.5 m2
Cachan (94230)Réf :
195
Centre ville, promenade de la Bièvre, à 10 minutes à pieds du Rer Arcueil Cachan métro 15 Grand Paris, très beau 2 pièces avec terrasse de 10m² donnant plein Ouest sur les espaces verts de la résidence au calme comprenant entrée avec placard, séjour, cuisine, chambre, salle de bains avec toilettes. Cave et parking en sous-sol.
Copropriété de 306 lots - dont 85 lots habitation. (Pas de procédure en cours).
Charges annuelles : 1800.00 euros.
Copropriété de 306 lots - dont 85 lots habitation. (Pas de procédure en cours).
Charges annuelles : 1800.00 euros.
Caractéristiques du bien
Caractéristiques
Valeurs
Code postal
94230
Surface habitable (m²)
38,50 m²
Nombre de chambre(s)
1
Nombre de pièces
2
Etage
2
Ascenseur
OUI
Nb de salle de bains
1
Type de cuisine
Equipée
Mode de chauffage
Autre
Type de chauffage
Radiateur
Format de chauffage
Collectif
Interphone
OUI
Balcon
OUI
Cave
OUI
Année de construction
2009
Infos financières
Caractéristiques
Valeurs
Détails des diagnostics énergtiques
Montant estimé des dépenses annuelles d'énergie de ce logement pour un usage standard est compris entre 270 € et 410 € . 2021 étant l'année de référence des prix de l'énergie utilisés pour établir cette estimation.
Ces biens peuvent vous
intéresser
Vendu
Cachan (94230)
96 m²
-
Nous consulter
Vendu
Cachan (94230)
CACHAN- LES LUMIERES
108 m²
-
Nous consulter